TRAVAILLER CHEZ SOI

Accompagnement de dirigeant dans son projet puis réalisation des travaux :

  • Aménager chez soi un espace de travail adapté aux besoins professionnels et à la vie de famille.

Ce que gagne le talent :

  • Améliorer son confort (ergonomie du poste de travail…) et sa performance
  • Augmenter sa qualité de vie au travail
  • Susciter l’attachement du salarié à l’entreprise

Première visite (2h) :

  • Définition du programme | Faisabilité du projet

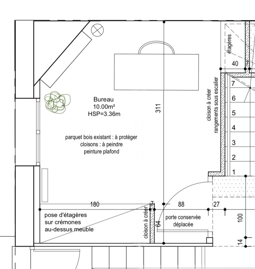
Conception Globale du Projet :

  • Relevé (cotations) | Esquisse | APD (Avant Projet Détaillé) | Estimation budgétaire
  • Option : Demande d’autorisation de Droit Privé et de Droit Public

Direction de l’Exécution des Travaux :

  • Consultation entreprises | Chiffrage | Planning chantier | Travaux | Réception et Levée des réserves